1. Testbeschreibung Sprühnebelprüfung mit verschiedenen Natriumchlorid-Lösungen nach DIN EN ISO 9227
2.1. Grundlagen des Verfahrens
Sprühnebelprüfung im Sinne der Norm sind Prüfungen mit einer kontinuierlich versprühten, wässrigen Natriumchlorid-Lösung mit einer Massenkonzentration von 50 g/l als angreifendes Mittel. Das Versprühen geschieht mit Hilfe von Druckluft.
2.2. Prüfkammer
Erforderlich ist eine beheizbare Prüfkammer mit Druckausgleich und den notwendigen Meß- und Regeleinrichtungen zum Einstellen und Einhalten einer Prüftemperatur von 35 +/- 2°C für die Prüfung DIN EN ISO 9227-NSS (Salzsprühnebelprüfung). Die Prüfkammer muß ein Volumen von min. 400 l haben und so konstruiert sein, dass Tropfen des Sprühnebels von der Decke, den Seitenwänden und den Prallplatten nicht auf die zu prüfenden Gegenstände fallen.
2.3. Schematische Darstellung einer Prüfeinrichtung

2.4. Proben
Die Proben sollten einen Größe von ca. 50 mm Breite, 100 mm Länge und 0,6 bis 1,5 mm Dicke haben.
2.5. Beanspruchung
Die Proben werden hochkant in einem Winkel von 60° bis 75° zur Horizontalen geneigt in dem Prüfgerät mit der Testfläche nach oben aufgestellt und durch DIN 50021-SS beansprucht.
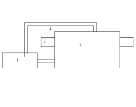
3. Versuchsaugbau in Anlehnung an die DIN 50021-SS

1. Behälter für Prüflösung (NaCl-Lösung 50 g/l VE-Wasser), Pumpe und Heizung
2. Behälter zur Probenaufnahme
3. Probe / Kolbenstange
4. Zuleitung mit Sprühkopf
4. Versuchsvorbereitung
Da die zu untersuchende Kolbenstange nicht zerstört werden durfte, wurde der oben dargestellte Versuchsaufbau gewählt.
Die Kolbenstange wurde in dem nicht zu prüfenden Bereich mit Klebeband abgedeckt.
